中古物件
能代市字中悪戸
- 分類
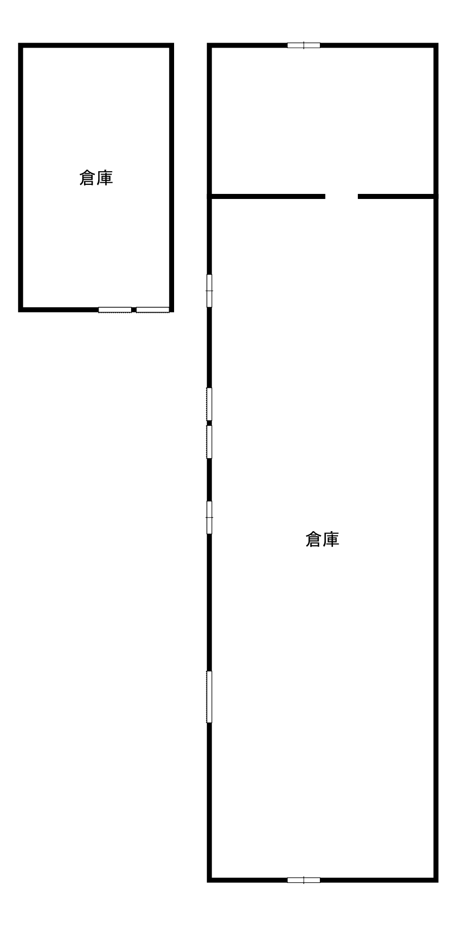
- 倉庫
- 間取り
- 土地面積
- 921.91㎡ ( 278.87坪)
- 価格
- 200万円
- 築年月
- 昭和44年築
- 建物面積
- 518.63㎡ ( 156.88坪)
- 所在地
- 能代市字中悪戸
物件詳細
- 所在地
- 能代市字中悪戸
- 用途地域
- 準工業地域
- 価格
- 200万円
- 建ペイ / 容積率
- 60%/200%
- 土地面積
- 921.91㎡(278.87坪)
- 種別
- 倉庫
- 築年月
- 昭和44年築
- 取引の形態
- 一般媒介
- 建物面積
- 518.63㎡(156.88坪)
- 構造
- 木造亜鉛メッキ鋼板葺平屋建
- 車庫
- 無
- 私道負担
- なし
- 交通
- 東能代駅より1.4km
- 設備・その他
- ・上水道:前面道路
・下水道:前面道路
・敷地内駐車可